ZpětÚvodNemovitosti PrahaRodinné domy PrahaProdej rodinné domy PrahaProdej řadové rodinné domy PrahaRodinný dům Praha 9
Rodinný dům Praha 9
Záložky
Prodej 5+kk, 150m2,
Popis nemovitosti
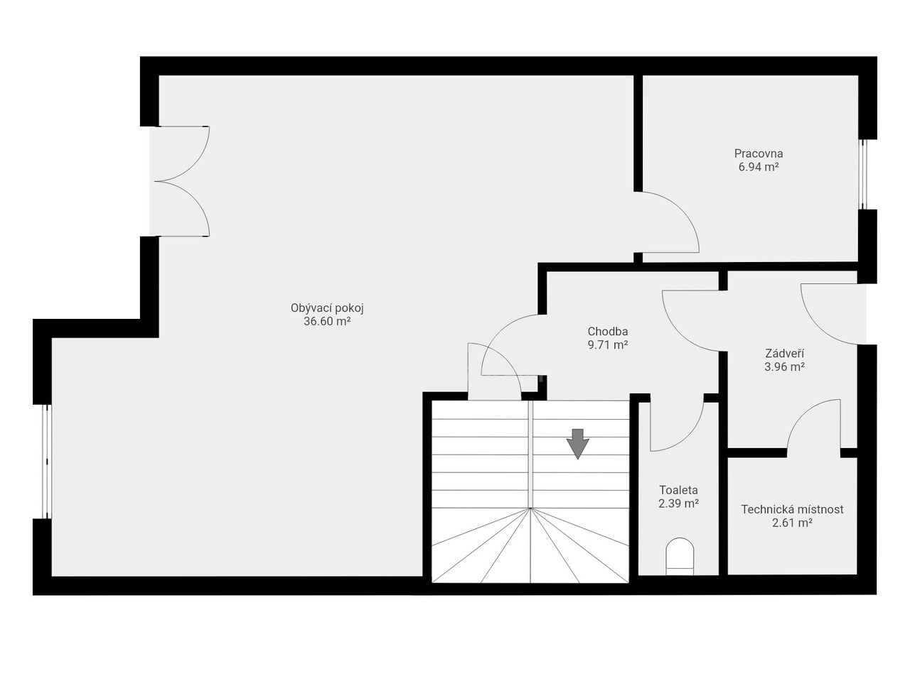
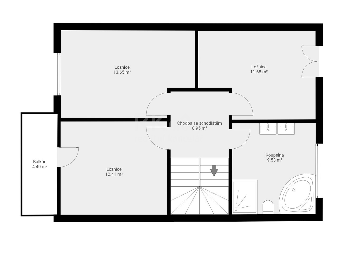
V srdci klidné oblasti Třeboradice, Praha 9, se nachází krásný a prostorný řadový dům, který čeká na své nové majitele. Tento moderní dům o dispozici 5+kk a rozloze 150 m2 je ideálním místem pro rodinný život. S pozemkem o velikosti 210 m2 nabízí dostatek prostoru pro relaxaci a zábavu. Dům je ve vy...
| Cena: | 19.879.000 Kč(za nemovitost)vč. provize RK a právního servisu |
|---|---|
| Lokalita: | Třeboradice, Praha, Hlavní město Praha |
| Stav nabídky: | aktuální |
| Číslo: | 8659 |
| Typ reality: | Řadové rodinné domy - Rodinné domy |
| Plocha: | 210 m2 |
Kontakt na makléře
Nahrávám...
Vlastnosti nemovitosti
| Internet: | Ano |
|---|---|
| Telefon: | Ano |
| Datové rozvody: | Ano |
| Kabelová TV: | Ano |
| Služby: | Ano |
|---|---|
| Supermarket: | Ano |
| Obchody: | Ano |
| Pošta: | Ano |
| Lékař: | Ano |
| Škola: | Ano |
| Školka: | Ano |
| Dálnice: | Ano |
| MHD: | Ano |
| Autobus: | Ano |
| Železnice: | Ano |
| Kanalizace: | Ano |
|---|---|
| Vodovod: | Ano |
| Elektro 400V: | Ano |
| Elektro 230V: | Ano |
| Plyn: | Ano |
| Sklep: | Ano |
|---|---|
| Balkón: | Ano |
| Včetně vybavení: | Ano |
| Parkoviště: | Ano |
| Garáž: | Ano |
| Počet pokojů: | 5 a více pokojů |
|---|---|
| Celkový počet podlaží: | 2 |
| Umístění objektu: | klidná část obce |
| Poloha objektu: | řadový |
| Stav objektu: | velmi dobrý |
| Technologie výstavby: | cihlová |
| Plocha pozemku: | 210 |
|---|---|
| Zastavěná plocha: | 97 m2 |
| Užitná plocha: | 150 m2 |
| Plocha zahrada: | 113 m2 |
| Třída energetické náročnosti budovy: | B - Velmi úsporná |
|---|
© 2025, RK Group – skupina realitních kanceláří s.r.o. – všechna práva vyhrazena Vnitřní oznamovací systém
Prohlášení o přístupnosti | Ochrana osobních údajů | Mapa stránek
Realitní software dodává eBRÁNA | Software a informační systém pro realitní kanceláře REALBrána | Nabídka nemovitostí RB Reality







































