ZpětÚvodNemovitosti ChebKomerční objekty ChebPronájem komerční objekty ChebPronájem jiné komerční objekty ChebPronájem komerčního objektu (prodejna, sklady, kanceláře), 734 m², Velká Hleďsebe – Mariánské Lázně
Pronájem komerčního objektu (prodejna, sklady, kanceláře), 734 m², Velká Hleďsebe – Mariánské Lázně
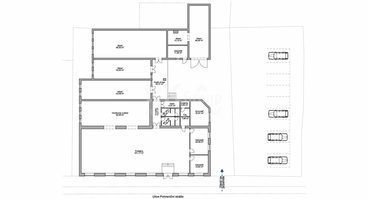
Dovoluji si Vám nabídnout pronájem rozsáhlého a multifunkčního komerčního objektu o celkové rozloze cca 734 m².
Popis nemovitosti
Nemovitost se nachází na strategickém místě v ulici Pohraniční stráže 85, v těsné blízkosti Mariánských Lázní. Objekt prošel poslední rekonstrukcí v roce 2010 a je ve velmi dobrém technickém stavu.
Dispozice a vybavení objektu:
Prostor je velmi variabilní a nabízí ideální kombinaci prodejních, skl...
| Cena: | 70.000 Kč(za měsíc)Rozpis poplatků v popisku. |
|---|---|
| Lokalita: | Velká Hleďsebe, Cheb, Karlovarský |
| Stav nabídky: | aktuální |
| Číslo: | 9432 |
| Typ reality: | Jiné komerční objekty - Komerční objekty |
| Plocha: | 1666 m2 |
Kontakt na makléře
Nahrávám...
Vlastnosti nemovitosti
| Topení plyn: | Ano |
|---|---|
| Topení ústřední: | Ano |
| Elektro 400V: | Ano |
| Elektro 230V: | Ano |
| Plyn: | Ano |
| Sklep: | Ne |
|---|---|
| Sociální zařízení: | Ano |
| Včetně vybavení: | Ano |
| Parkoviště: | Ano |
| Počet parkovacích míst: | 16 |
|---|---|
| Celkový počet podlaží: | 1 |
| Umístění objektu: | centrum obce |
| Poloha objektu: | samostatný |
| Stav objektu: | po rekonstrukci |
| Technologie výstavby: | cihlová |
| Plocha pozemku: | 1666 |
|---|---|
| Zastavěná plocha: | 850 m2 |
| Užitná plocha: | 734 m2 |
© 2026, RK Group – skupina realitních kanceláří s.r.o. – všechna práva vyhrazena Vnitřní oznamovací systém
Prohlášení o přístupnosti | Ochrana osobních údajů | Mapa stránek
Realitní software dodává eBRÁNA | Software a informační systém pro realitní kanceláře REALBrána | Nabídka nemovitostí RB Reality






















