ZpětÚvodNemovitosti PrahaRodinné domy PrahaProdej rodinné domy PrahaProdej samostatné rodinné domy PrahaProdej projektu RD 102 m2 + 50 m2 terasa na pozemku 664 m2 v Praze 5 - Slivenec.
Prodej projektu RD 102 m2 + 50 m2 terasa na pozemku 664 m2 v Praze 5 - Slivenec.
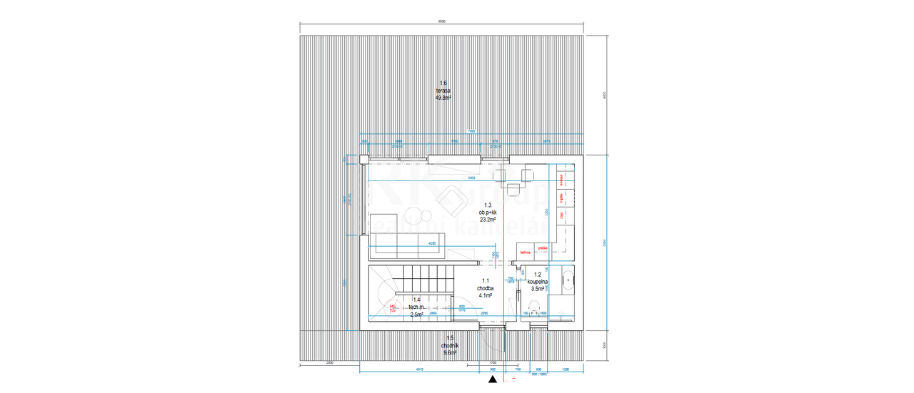
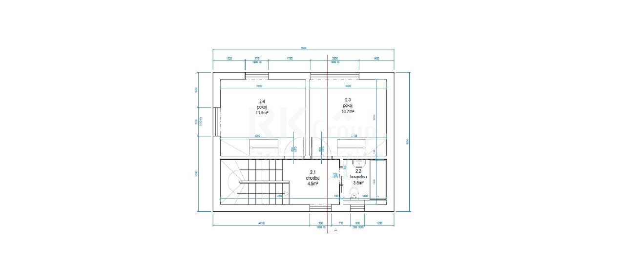
Dovoluji si Vám nabídnout stavební pozemek s projektem rodinného domu 3+KK (102 m2) s terasou (50 m2) v krásné přírodě chatové osady v Praze 5 - Slivenec jen 15 min. od Anděla.
Popis nemovitosti
Pozemek je k prodeji vč. kompletně zpracovaného projektu se stavebním povolením na rodinný dům - dřevostavbu se statusem rekreačního objektu. V okolí je většina staveb obdobných, určena a využívána k trvalému ceroročnímu bydlení. Navržený dům s plnohodnotnou dispozicí 3+kk a zastavěnou plochou 44 m2...
| Cena: | 4.990.000 Kč(za nemovitost)cena zahrnuje kompletní právní a hypotéční servis i provizi RK |
|---|---|
| Lokalita: | Slivenec, Praha, Hlavní město Praha |
| Stav nabídky: | aktuální |
| Číslo: | 8586 |
| Typ reality: | Samostatné rodinné domy - Rodinné domy |
| Plocha: | 664 m2 |
Kontakt na makléře
Nahrávám...
Vlastnosti nemovitosti
| Elektro 230V: | Ano |
|---|---|
| Vlastní vodní zdroj: | Ano |
| Studna: | Ano |
| Sklep: | Ne |
|---|
| Počet pokojů: | 4 pokoje |
|---|---|
| Celkový počet podlaží: | 3 |
| Umístění objektu: | klidná část obce |
| Poloha objektu: | samostatný |
| Stav objektu: | projekt |
| Technologie výstavby: | dřevěná |
| Zastavěná plocha: | 44 m2 |
|---|---|
| Užitná plocha: | 102 m2 |
| Plocha zahrada: | 620 m2 |
| Plocha terasa: | 50 m2 |
| Plocha pozemku: | 664 |
| Třída energetické náročnosti budovy: | G - Mimořádně nehospodárná |
|---|
© 2025, RK Group – skupina realitních kanceláří s.r.o. – všechna práva vyhrazena Vnitřní oznamovací systém
Prohlášení o přístupnosti | Ochrana osobních údajů | Mapa stránek
Realitní software dodává eBRÁNA | Software a informační systém pro realitní kanceláře REALBrána | Nabídka nemovitostí RB Reality





































