ZpětÚvodNemovitosti KladnoRodinné domy KladnoProdej rodinné domy KladnoProdej samostatné rodinné domy KladnoProdej novostavby RD 4+kk, 130 m2, na pozemku 458 m2, Dolní Kamenice u Velvar
Prodej novostavby RD 4+kk, 130 m2, na pozemku 458 m2, Dolní Kamenice u Velvar
Nabízíme prodej novostavby RD 130 m2 na pozemku 458 m2 v obci Dolní Kamenice u Velvar, okr. Kladno.
Popis nemovitosti
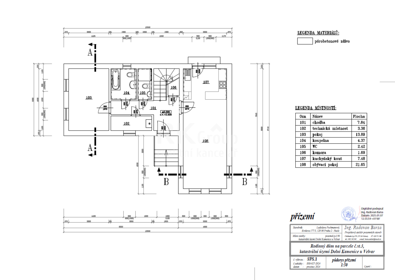
Jedná se o nepodsklepený rodinný dům s podkrovím, kolaudace 11/2025. V přízemí obývací pokoj s prostorem připraveným na instalaci kuchyňské linky, ložnice, dvě koupelny s WC (jedna s vanou, druhá se sprchou), komora a technická místnost s kotlem zn. Buderus zajišťujícím vytápění a ohřev TUV.
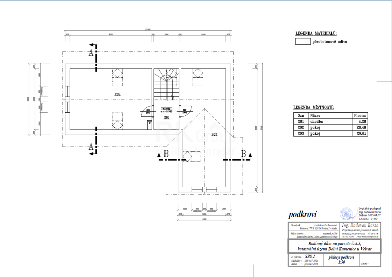
V pod...
| Cena: | 8.500.000 Kč(za nemovitost)vč. provize a právního servisu |
|---|---|
| Lokalita: | Dolní Kamenice, Chržín, Kladno, Středočeský |
| Stav nabídky: | rezervováno |
| Číslo: | 8808 |
| Typ reality: | Samostatné rodinné domy - Rodinné domy |
| Plocha: | 458 m2 |
Kontakt na makléře
Nahrávám...
Vlastnosti nemovitosti
| Topení plyn: | Ano |
|---|---|
| Topení ústřední: | Ano |
| Kanalizace: | Ano |
| Vodovod: | Ano |
| Elektro 400V: | Ano |
| Elektro 230V: | Ano |
| Plyn: | Ano |
| Sklep: | Ne |
|---|---|
| Půdní vestavba: | Ano |
| Výtah: | Ne |
| Parkoviště: | Ano |
| Garáž: | Ne |
| Počet pokojů: | 4 pokoje |
|---|---|
| Rok výstavby: | 2025 |
| Celkový počet podlaží: | 2 |
| Umístění objektu: | kraj obce |
| Poloha objektu: | samostatný |
| Stav objektu: | novostavba |
| Technologie výstavby: | cihlová |
| Plocha pozemku: | 458 |
|---|---|
| Zastavěná plocha: | 85 m2 |
| Užitná plocha: | 130 m2 |
| Služby: | Ano |
|---|---|
| Supermarket: | Ano |
| Obchody: | Ano |
| Pošta: | Ano |
| Lékař: | Ano |
| Škola: | Ano |
| Školka: | Ano |
| Dálnice: | Ano |
| MHD: | Ano |
| Autobus: | Ano |
| Železnice: | Ano |
| Třída energetické náročnosti budovy: | B - Velmi úsporná |
|---|---|
| Energetický průkaz: | Stáhnout |
© 2026, RK Group – skupina realitních kanceláří s.r.o. – všechna práva vyhrazena Vnitřní oznamovací systém
Prohlášení o přístupnosti | Ochrana osobních údajů | Mapa stránek
Realitní software dodává eBRÁNA | Software a informační systém pro realitní kanceláře REALBrána | Nabídka nemovitostí RB Reality

























