ZpětÚvodNemovitosti ChebByty ChebProdej byty ChebProdej byty 1+1 ChebProdej bytu, 1+1, sklep, lodžie, 3.patro, 39,42 m2, ul. Krátká  – Lázně Kynžvart
Prodej bytu, 1+1, sklep, lodžie, 3.patro, 39,42 m2, ul. Krátká – Lázně Kynžvart
Dovoluji si Vám nabídnout prodej bytu po kompletní rekonstrukci. Byt má dispozici 1+1 a náleží k němu sklep a lodžie v mezipatře.   
  Popis nemovitosti
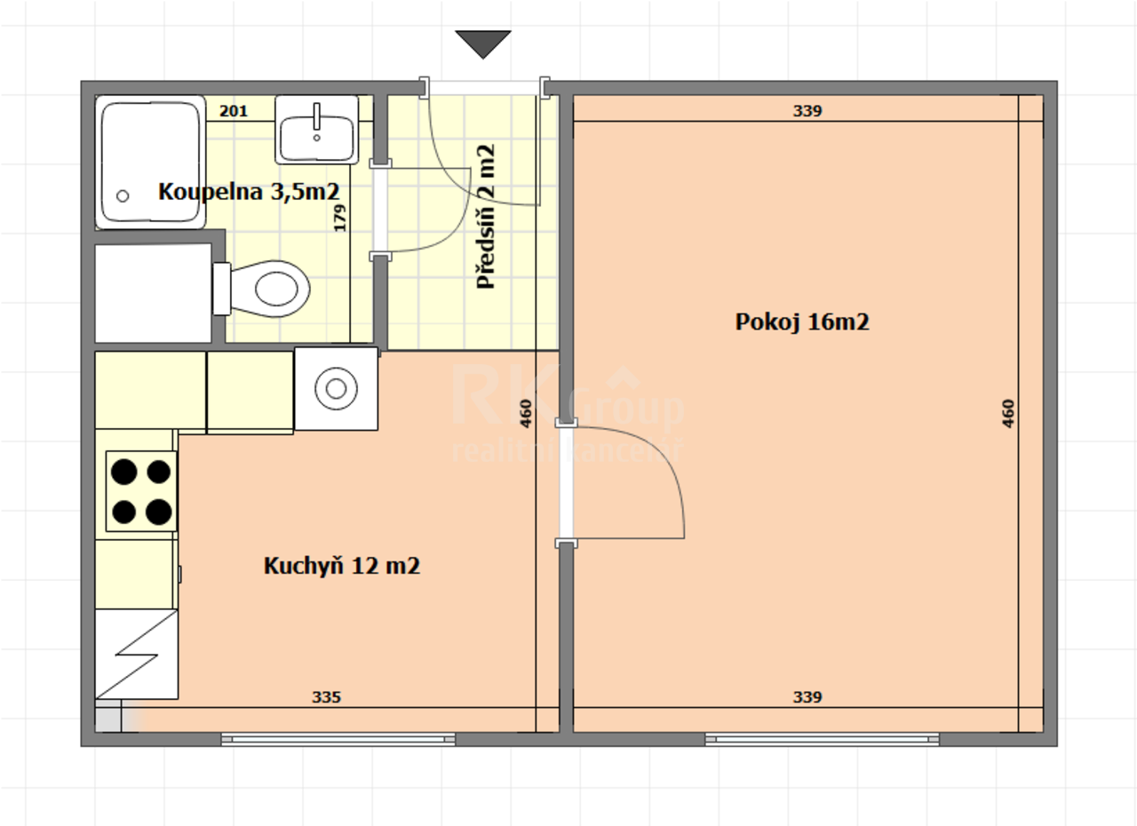
Byt je situován do třetího patra udržovaného panelového domu na ulici Krátká 364 – Lázně Kynžvart. Rozměry jednotlivých místností: kuchyň 12 m2, pokoj 16 m2, předsíň 2 m2, koupelna s WC 3 m2, sklep 1,80 m2, lodžie 4,6 m2.
 
Standard bytu: kvalitní vinylové podlahy v kuchyni a pokoji, keramická dla...
  | Cena: | 1.990.000 Kč(za nemovitost)Cena zahrnuje kompletní právní servis a provizi RK. | 
|---|---|
| Lokalita: | Lázně Kynžvart, Cheb, Karlovarský | 
| Stav nabídky: | aktuální | 
| Číslo: | 8452 | 
| Typ reality: | Byty 1+1 - Byty | 
| Plocha: | 39 m2 | 
Kontakt na makléře
Nahrávám...
    
  Vlastnosti nemovitosti
| Stav objektu: | po rekonstrukci | 
|---|---|
| Umístění objektu: | centrum obce | 
| Celkový počet podlaží: | 5 | 
| Vlastnictví: | osobní | 
| Technologie výstavby: | panelová | 
| Číslo podlaží v domě: | 4 | 
| Rok rekonstrukce: | 2021 | 
| Topení ústřední: | Ano | 
|---|---|
| Topení dálkové: | Ano | 
| Kanalizace: | Ano | 
| Elektro 230V: | Ano | 
| Vodovod: | Ano | 
| Plocha lodžie: | 4,6 m2 | 
|---|---|
| Plocha sklep: | 2 m2 | 
| Užitná plocha: | 33 m2 | 
| Parkoviště: | Ano | 
|---|---|
| Lodžie: | Ano | 
| Sklep: | Ano | 
© 2025, RK Group – skupina realitních kanceláří s.r.o. – všechna práva vyhrazena Vnitřní oznamovací systém
Prohlášení o přístupnosti | Ochrana osobních údajů | Mapa stránek
Realitní software dodává eBRÁNA | Software a informační systém pro realitní kanceláře REALBrána | Nabídka nemovitostí RB Reality























