ZpětÚvodNemovitosti PrahaByty PrahaProdej byty PrahaProdej byty 2+kk PrahaProdej bytu 2+kk, 41m2, Praha 10
Prodej bytu 2+kk, 41m2, Praha 10
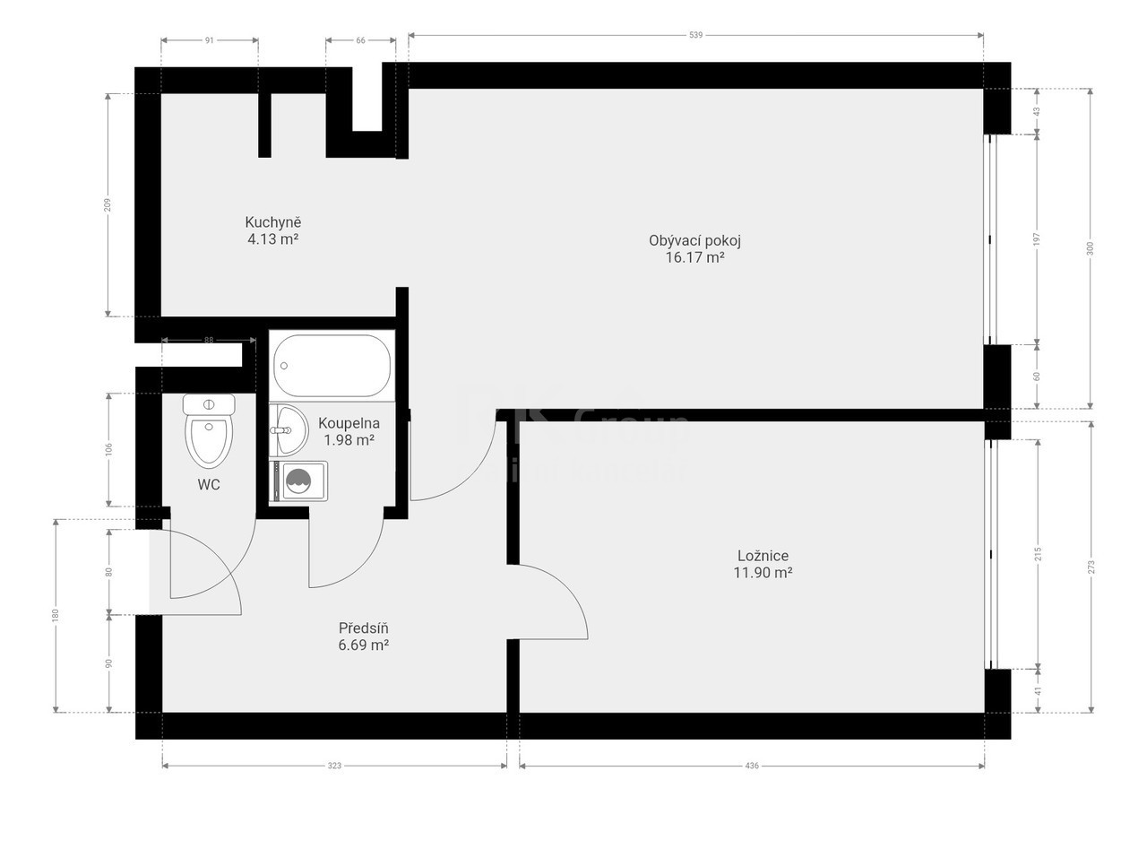
Nabízíme k prodeji původní byt 2+kk o velikosti 41m2.
Popis nemovitosti
Nachází se v klidné lokalitě s krásným výhledem do parku, který slouží k relaxaci obyvatel domu. Dominantou bytu je prostorný obývací pokoj s kuchyňským koutem, neprůchozí pokoj, koupelna s vanou a samostatní toaleta. V bytě je kuchyňská linka a nábytek, dle dohody se vše vystěhuje nebo může ponecha...
| Cena: | 4.950.000 Kč(za nemovitost)vč.provize a právního servisu |
|---|---|
| Lokalita: | Strašnice, Praha, Hlavní město Praha |
| Stav nabídky: | rezervováno sleva |
| Číslo: | 7456 |
| Typ reality: | Byty 2+kk - Byty |
| Plocha: | 41.76 m2 |
Kontakt na makléře
Nahrávám...
Vlastnosti nemovitosti
| Užitná plocha: | 41 m2 |
|---|---|
| Plocha sklep: | 1,07 m2 |
| Číslo podlaží v domě: | 4 |
|---|---|
| Celkový počet podlaží: | 7 |
| Umístění objektu: | centrum obce |
| Stav objektu: | po rekonstrukci |
| Technologie výstavby: | panelová |
| Vlastnictví: | osobní |
| Služby: | Ano |
|---|---|
| Supermarket: | Ano |
| Obchody: | Ano |
| Pošta: | Ano |
| Lékař: | Ano |
| Škola: | Ano |
| Školka: | Ano |
| Dálnice: | Ano |
| MHD: | Ano |
| Autobus: | Ano |
| Železnice: | Ano |
| Topení dálkové: | Ano |
|---|---|
| Elektro 230V: | Ano |
| Plyn: | Ano |
| Sklep: | Ano |
|---|---|
| Výtah: | Ano |
| Parkoviště: | Ano |
| Třída energetické náročnosti budovy: | C - Úsporná |
|---|
© 2026, RK Group – skupina realitních kanceláří s.r.o. – všechna práva vyhrazena Vnitřní oznamovací systém
Prohlášení o přístupnosti | Ochrana osobních údajů | Mapa stránek
Realitní software dodává eBRÁNA | Software a informační systém pro realitní kanceláře REALBrána | Nabídka nemovitostí RB Reality



















